Izgradnja mrtvačnice predstavlja značajan korak u dovršenju infrastrukturnih zadataka na području Općine Rešetari. Osiguranjem dostojanstvenog i higijenskog prostora za pokojnike i njihove obitelji, ovim će se projektom doprinijeti poboljšanju kvalitete života ukupnog standarda na tom području. – objavili su iz Općine Rešetari.
Izgradnja mrtvačnice predstavlja prioritete lokalne zajednice u cilju poboljšanja doprinosa lokalne infrastrukture što je u skladu s ciljevima i prioritetima Programa poboljšanja uvjeta na grobljima. Shodno spoznaji da su se pokojnici pohranjivali na zadnji ispraćaj u staroj župnoj crkvi od iduće godine, zadnje groblje na općinskom području bez mrtvačnice je katoličko groblje u Zapolju.
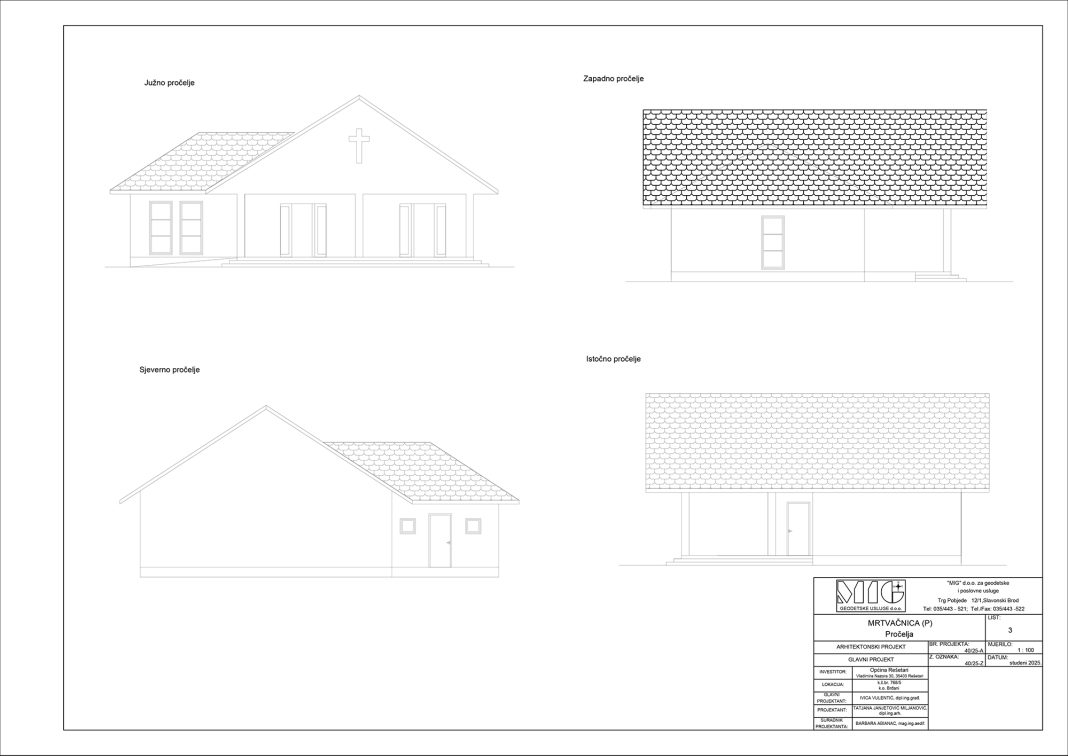
Buduća mrtvačnica imat će neto površinu 93,60 m2 i bruto površinu 138,60 m2 dok bi ukupna visina objekta iznosila 6,08 m. Građenje bi trebalo biti na lokaciji na spoju starog i novog groblja sa pristupnim putem, a sve u skladu s projektnim nacrtima.
U sklopu objekta planiraju se prostori: dvije dvorane za pogrebe, pred prostor, prostor za svećenika, trijem, sanitarni čvorovi, prostorija za obitelj, rampa za invalide. Projekt je izradila tvrtka MIG d.o.o., Slavonski Brod. Po izdavanju građevinske dozvole, planira se početak gradnje na proljeće 2026. godine.
Izvor/Foto: Općina Rešetari




















